Simple clean lines, volumetric variations, beautifully refined colour schemes, attention to detail and close integration of interiors and exteriors all combine to create ‘The Skewed House’ by Lijo Reny, Principal Architects, Founders of Lijo.Reny.architects—an aesthetically designed abode in the scenic Palakkad, Kerala. Sometimes the structure of the plot becomes the creative inspiration for a spacious home. This notion here becomes an ideal example of architecture that celebrates life. Qualities like simplicity and serendipity are often overlooked for brash and angry interpretations because they are hard to articulate. The ‘Skewed House’ by Lijo.Reny.architects is a true reflection of the power of architecture to create spaces that transcend mundane notions and trivialities, to elevate and celebrate the sense of being. This abstraction of the mountains combined with the skewed nature of the plot helped in deriving a contemporary vocabulary, a reflection of the attitudes of the busy doctor couple and their two kids for whom the house was designed. Every inch of the space is evocative, never static, and constantly reflects the inherent flux in nature.
A HOME OVERVIEW
The spaces open out into internal courtyards, creating a sense of continuity from the inside to outside, where these open volumes are integral to the conception of this house and form a backdrop to the entire space. The landscaping adds vibrancy and life to the ambience, aiding in the microclimatic control of the space, resulting in ventilated areas that are much cooler than the outside temperatures. Volumes are manipulated and spaces sculpted to
modulate the spatial experience in each area. Thus, there are careful variations in height and volume, creating subtle transitions from a low-height intimate passage that opens out onto double-height volumes, amplifying the psychological impression that this sequencing generates. Combined with the careful placement of windows on the double-height, it allows natural light to filter into the spaces and create a very uplifting spatiality that keeps varying with the different moods of the day.
Light as an element is orchestrated in a highly restrained manner, creating spaces where sometimes the light filters indirectly along a double-height wall, while sometimes there is an explosion of natural light which is focused directly onto a wall that forms a screen. The fourth element of time is manifested in the changing moods of the day projected onto the various walls through carefully orchestrated openings. Patterns add another dimension to
this manipulation of light from the overhead grills, which are in a perpetual state of fluidity, adding a dash of dynamism to the pristine spaces. The SS grill on top of the open courtyard has been detailed out to catch the strong sun, projecting beautiful abstract patterns onto the wall planes. The dynamism is brought in by the constant variations created by the varying sun paths.
The spaces are well detailed out with careful consideration paid to the minutest element. Even subtle variations can have a huge impact on the spatial and tactile quality That has to address every aspect that influenced the design process of the space. The relatively minimalistic colour schemes and design sensibility are made interesting by small details—the light fixtures, the linear LED strips that span from the walls to the ceiling, the yellow accents that speak to the space’s ambience, and the white walls. The basic elements of light and space are sculpturally expressed within a powerful and transcendental clearly defined line, a structural form juxtaposed on a visual plane, which perceptually evolves as one moves forward. The private zones of the house are a sequence of dynamic spatial compositions which open out onto variously scaled internal courtyards. Gradually, it rises to a three-dimensional abstraction of volumes into a monumental juxtaposition of elements at a certain point. The architects duo says, “The approach is carefully orchestrated – the angular forms are very subtle at a distance, merging into the residential fabric of the
bylane almost unperceptibly.” Minimalistically detailed furniture further enlivens the quality of the space and ambience. Neat clean lines define contemporary aesthetic sensibilities, which run as a unifying theme through the interiors.



FLOOR PLAN IN ACTUAL ALIGNMENT
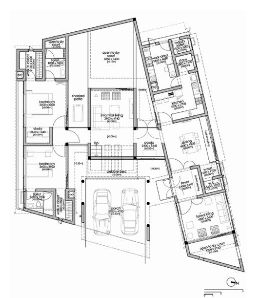
The spaces of the house are juxtaposed as three principal bays which are layered with open spaces in between to address the microclimatic considerations, creating volumes that are bathed in natural light and
ventilation. These bays are organised around an open-to-sky central court, which ensures a constant movement of air through the spaces all year round. The private zones of the house are a sequence of dynamic spatial compositions which open out onto variously scaled internal courtyards. The basic elements of space and light are articulated in highly sculptural ways, enclosing volumes that are dynamic and transcendent.



AMBIENCE OF SPACE
An angular open-to-sky court defined by the external boundary wall lets in natural light and greenery to the pristine white formal living space. This space has a split-level ceiling with a large opening to the east, which is carefully screened with a custom-designed aluminium screen that lets in the morning light. The furnishings are minimal and contemporary—clean lines with white upholstery and a custom-designed coffee table in white Corian with SS inserts contrasts beautifully with the greenery of the open-to-sky court.
There is an informal entry sequence, passing through a frangipani court and into a simplistic glass door enclosed foyer that has a very open feel. The formal living area is deliberately set off towards the outer periphery of the plot as a semi-public zone. The dining space, to which one enters from the foyer, defines the entry to the private zones of the house. Despite its simplicity, the room is dominated by a large window with a built-in window seat created from the split-level ceiling and framed with custom-designed aluminium screens to catch the play of the evening sunlight. Stainless steel skewed legs balance a glass top beautifully on top of the well-designed dining table. In this northern bay are the foyer, the formal living area, dining rooms, powder room, kitchen, and related functional spaces like the store and work area.
FUNCTIONALITY OF SPACE
The buffer space between the northern and central bays of the house is a layer of landscaping. Offsite from the connecting passage is a monolithic block of granite, which defines the pooja space. A simple Ganesha idol sits atop this monolithic pedestal where the black granite of the pedestal continues to the floor. As an extension, out onto the open court in front where the monolithic block of granite is intelligently designed for storage
space in plywood, which is then, clad with granite, for keeping materials like matchboxes, oil, etc. 

The central bay contains the dynamic family living space, which opens out onto the vibrant open-sky court. The staircase and the upper bridge connecting the other two bays are oriented on the opposite side, towards the external car porch, creating a buffer on the external side. The double-height informal living space forms the heart of this composition and extends out onto a stimulating open-to-sky court. This space is deliberately offset from the entry bay to increase privacy. White Barcelona chairs are contrasted with a vibrant yellow coffee table finished in Corian and a custom-designed TV console, adding a touch of delicate sophistication. One of the main elements of the house is the interestingly detailed-out staircase—the interplay between the solidity and permanence of the Kota stone-finished lower portion of the stair and the ethereal lightness of the suspended stainless steel upper flight of stairs. The 3mm thick SS plates fold around in a minimalistic fashion to create a delicately precise flight, which, when combined with the ceiling-suspended glass railings, creates an illusion of floating in space. Sound further adds another tactile dimension to the space through variations created by changes in the material—the lightness of the footfall on steel contrasted with the solidity of stone treads.

All the bedrooms feature built-in cots finished in white Corian and detailed out with neat SS trims, creating floating platforms. The southern bay houses the bedrooms and the toilets on both floors and is buffered from the central zone by a layer of covered open space. The master bedroom on the ground floor features a set of fully openable sliding doors. This
defines the front plane, which further opens out onto the central court through an intimate private patio. The covered patio serves as an extension of the bedroom and houses a small workout area. The southern side of the master bedroom is defined by layers of narrow horizontal slit windows that run through the entire length of the wall. These linear fenestrations keep out the harsh southern sun while allowing plenty of natural ventilation inside the bedroom. They further ensure privacy from the dense residential fabric on the southern side.


The functional and conceptual clarity of the design, articulated through a well-defined aesthetic sensibility creates spaces that are dynamic and beautiful; one which is never static but is evolving constantly. Simple clean lines, volumetric variations, beautifully refined colour schemes, attention to detail and the close integration of interiors and exteriors, all combine to create a highly refined and beautiful space, one which is a joy to live in.


THE SKEWED HOUSE
Location: Palakkad | Kerala
Client: Dr. Praveen and Dr.Sona
Project Area:
3861 sq ft | 359 sq m
Site Area: 13.36 ct | 541 sq m
Year of Completion: 2014






